Espace propriétaire
fr
Descriptif de ce bien

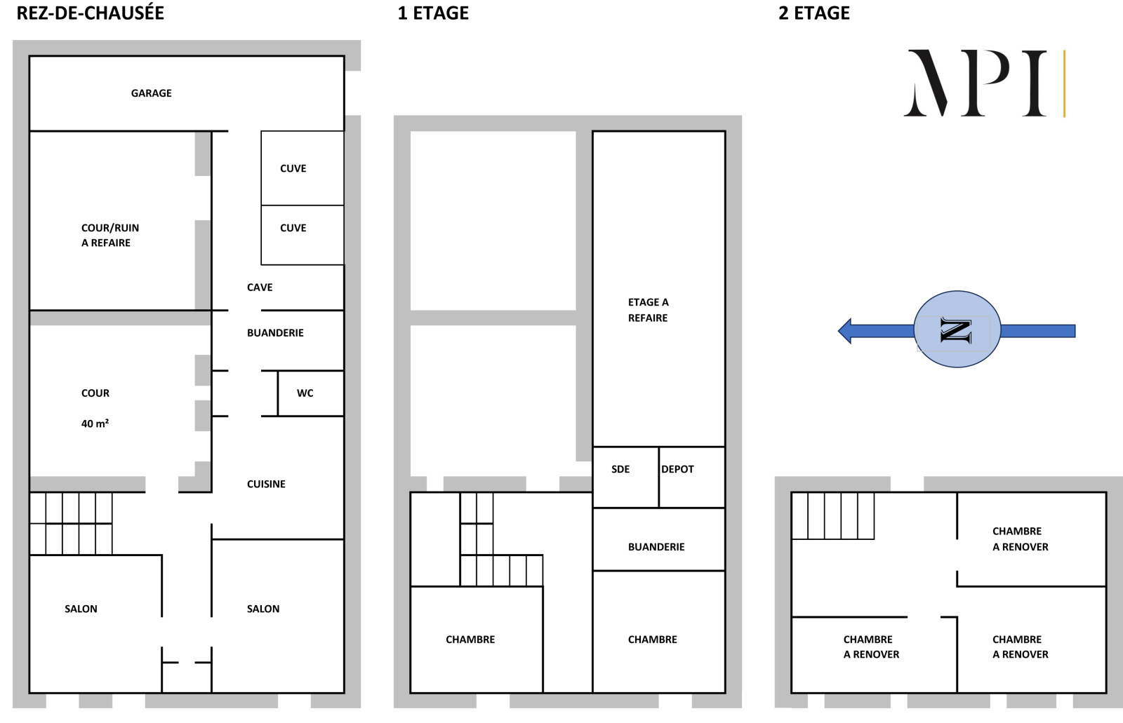
Grande maison spacieuse, au coeur de Trausse.
La maison principale est en bon état, avec double vitrage et de belles pièces lumineuses.

Des travaux de rénovation sont à prévoir.

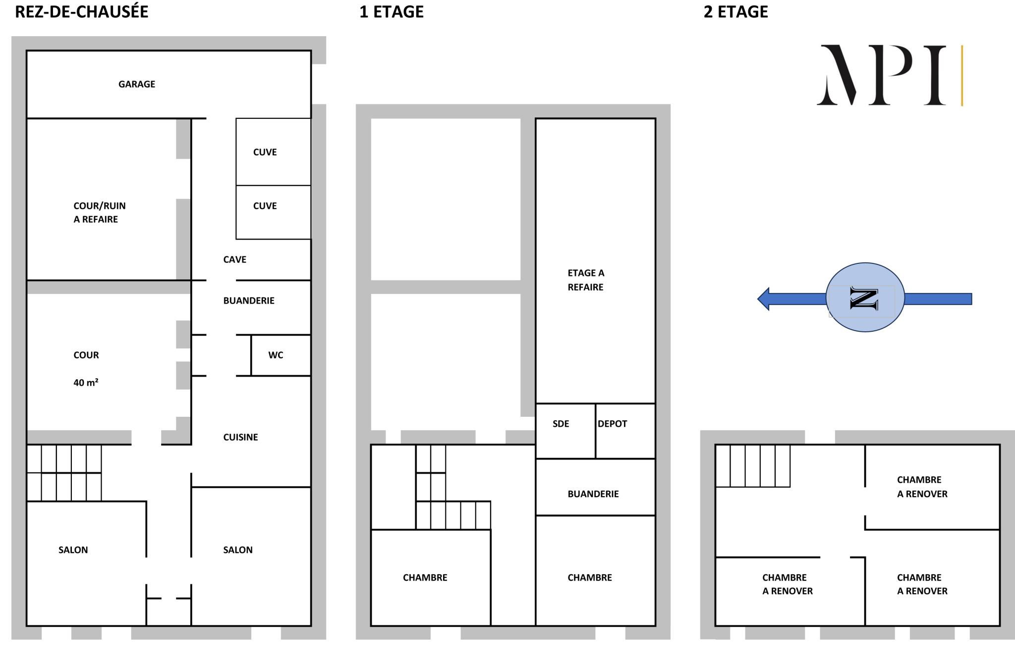
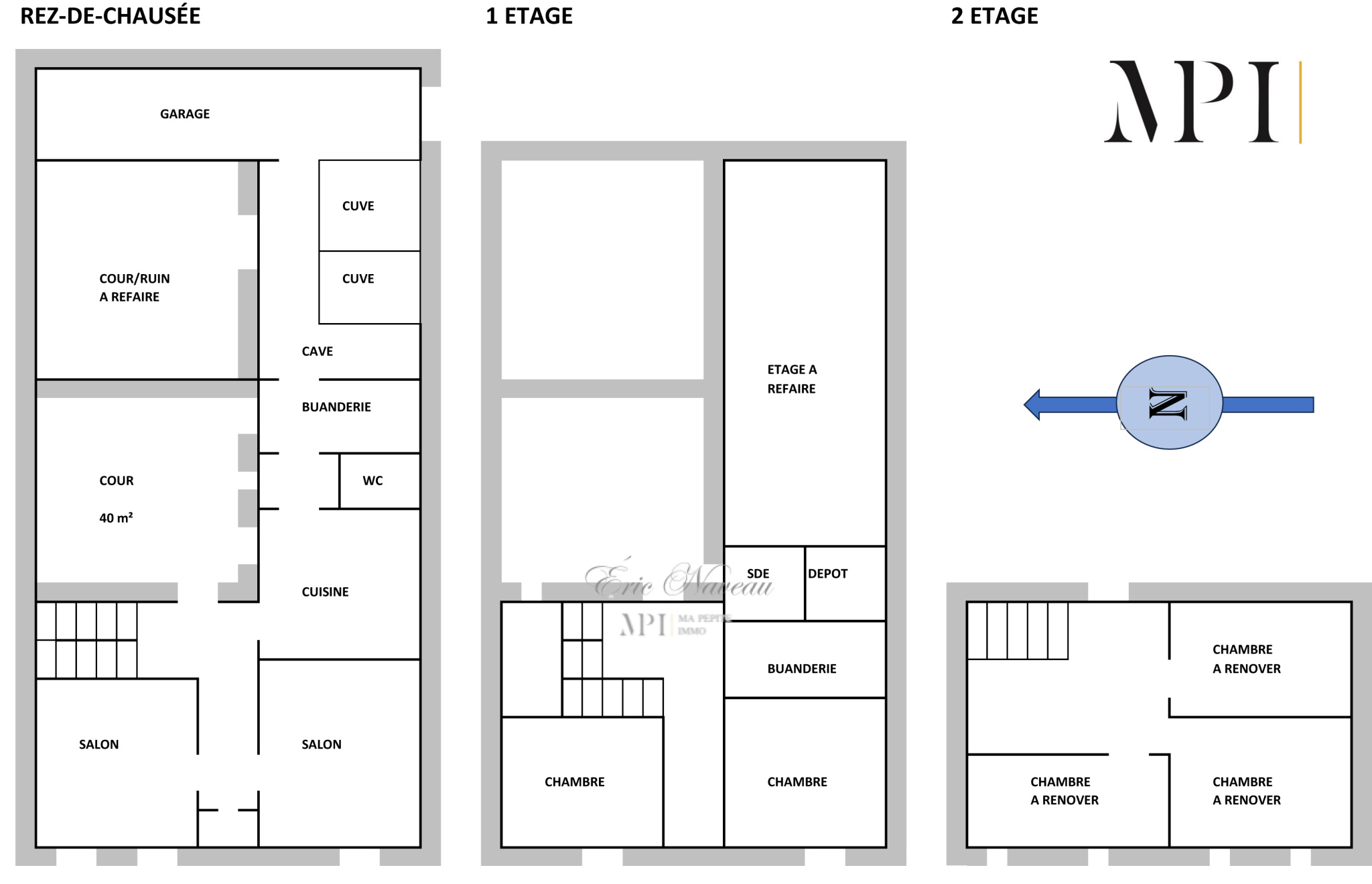
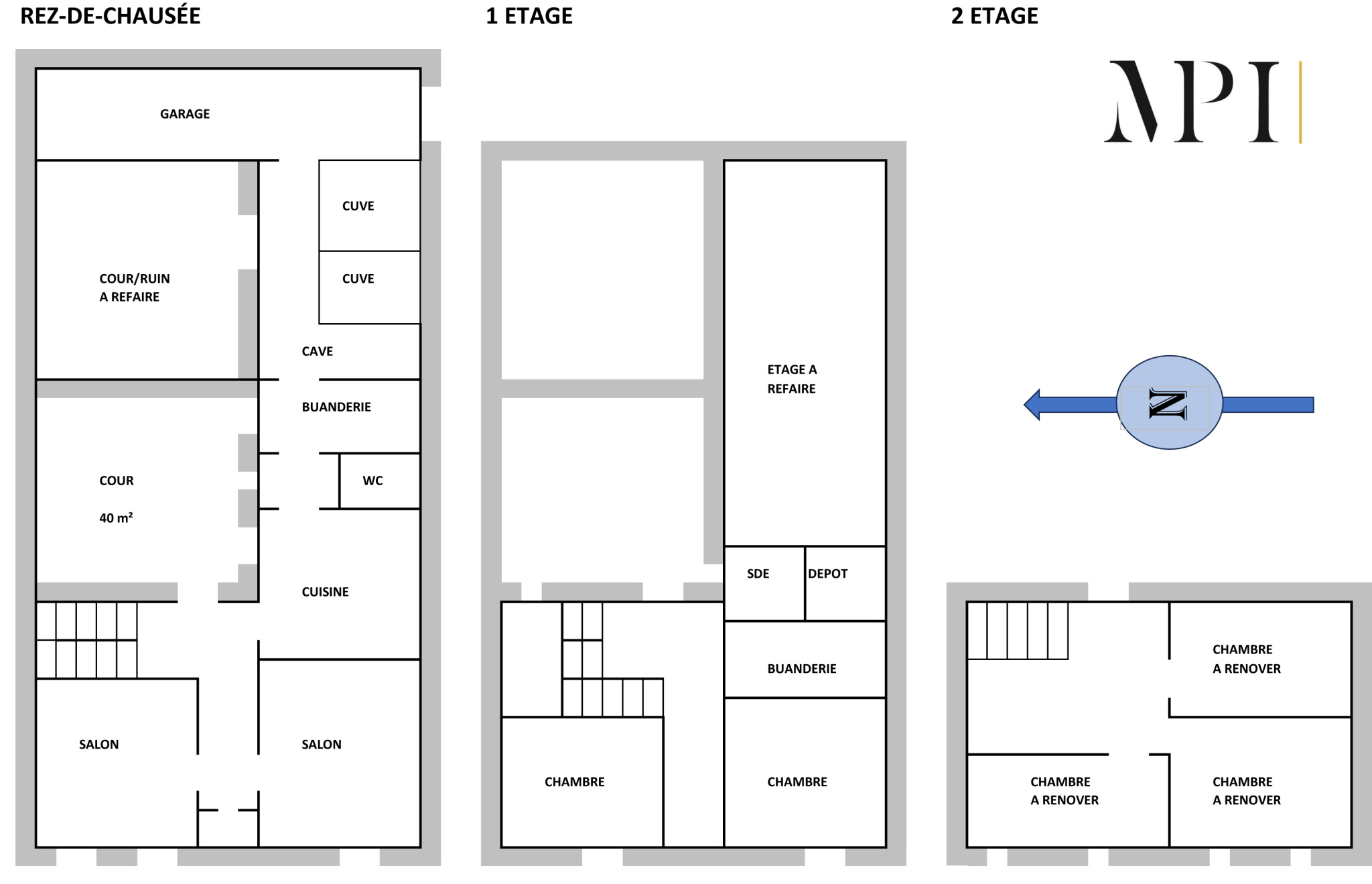
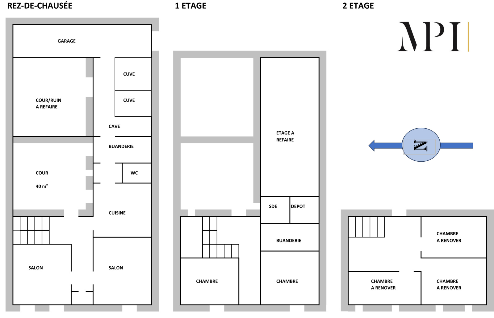
125 m² habitable
2 salons
Grande cuisine avec buanderie.
2 chambres avec placards
Salle de bains
3 pièces dans les combles
Grand cour
Partie de ancienne cave à renovér

Performance énergétique et climatique
Consommation d'énergie primaire - 261 kWh/m²/an (E)
Émissions de gaz - 8 kg CO2/m²/an (B)

Un jolie patio apporte air et lumière, permettant de vivre en plein air, sans vis-à-vis.

Le rez-de-chaussée se compose d'un joli couloir avec accès direct au patio. 2 grands salons lumineux, wc et cuisine avec accès direct à la cave.

Le premier étage se compose de 2 grandes pièces, dont une avec un petit bureau, ainsi qu’une pièce pour dressing, buanderie etc., et une salle de l’eau et wc.

Le deuxième étage est constitué de 3 grandes pièces mansardées à rénover.

En général, une maison en bon état, qui à pourtant juste besoin d’un coup de main pour la rénovation.

Trausse est situé au coeur du Minervois, connu pour son charme, son festival aux cerises au printemps et ses nombreuses animations tout au long de l'année.

Il y a une école et une école maternelle et primaire dans la village, ainsi qu'une épicerie/bar/café bien approvisionné.

En outre, il existe encore une longue série de petits commerces et artisans, qui ensemble contribuent à rendre la ville dynamique et attractive.

Il y a des bus et des taxis pour les villes environnantes et Carcassonne, qui est à seulement 15 minutes.

Village situé à 5 minutes de Rieux-Minervois, Peyriac-Minervois et Caunes-Minervois avec nombreuses commodités, lycée, grand piscine publique, restaurants etc.

A 10 minutes on trouve le Lac de Juarres pour la baignade et la navigation de plaisance, et le celèbre Canal-du-Midi.

Vous pourrez trouver les renseignements sur les risques auxquels ce bien est exposé sur le site www.georisques.gouv.fr

Prix de vente proposé par Peter KRISTENSEN EI : 80.000 € (frais d'agence inclus)

Pour toute demande de renseignements supplémentaires ou pour organiser une visite de cette maison, n'hésitez pas à contacter Peter KRISTENSEN EI au 07 68 72 01 51 - peter.kristensen@mapepiteimmo.fr.


Annonce proposée par un agent commercial

Général
Code postal 11160
surface terrain 40 m²
Nombre de chambre(s) 5
Nombre de pièces 5
Nombre de niveaux 2
Vue Dégagée
Détails
Nb de salle d'eau 1
Mode de chauffage Electrique
Type de chauffage Radiateur
Format de chauffage Individuel
Murs mitoyens 2
Exposition Est-Ouest
Financier
Prix de vente 80 000 €
Les honoraires d'agence seront intégralement à la charge du vendeur  
Taxe foncière annuelle 1 100 €
Quartier
  • Commerces et santé
  • Loisirs
  • Ecoles
  • Transports
  • Pratique
Energie
DPE GES
Contacter pour ce bien
L'agent
NAVEAU (EI) Eric conseiller(e) Courbevoie (92400)
Téléphone 07 67 46 65 66

* Champ obligatoire

Les informations recueillies sur ce formulaire sont enregistrées dans un fichier informatisé par La Boite Immo agissant comme Sous-traitant du traitement pour la gestion de la clientèle/prospects de l'Agence / du Réseau qui reste Responsable du Traitement de vos Données personnelles. La base légale du traitement repose sur l'intérêt légitime de l'Agence / du Réseau. Elles sont conservées jusqu'à demande de suppression et sont destinées à l'Agence / au Réseau. Conformément à la loi « informatique et libertés », vous disposez des droits d’accès, de rectification, d’effacement, d’opposition, de limitation et de portabilité de vos données. Vous pouvez retirer votre consentement à tout moment en contactant directement l’Agence / Le Réseau. Consultez le site https://cnil.fr/fr pour plus d’informations sur vos droits. Si vous estimez, après avoir contacté l'Agence / le Réseau, que vos droits « Informatique et Libertés » ne sont pas respectés, vous pouvez adresser une réclamation à la CNIL. Nous vous informons de l’existence de la liste d'opposition au démarchage téléphonique « Bloctel », sur laquelle vous pouvez vous inscrire ici : https://www.bloctel.gouv.fr Dans le cadre de la protection des Données personnelles, nous vous invitons à ne pas inscrire de Données sensibles dans le champ de saisie libre.
Ce site est protégé par reCAPTCHA, les Politiques de Confidentialité et les Conditions d'Utilisation de Google s'appliquent.

Découvrir nos outils