Espace propriétaire
fr
Descriptif de ce bien

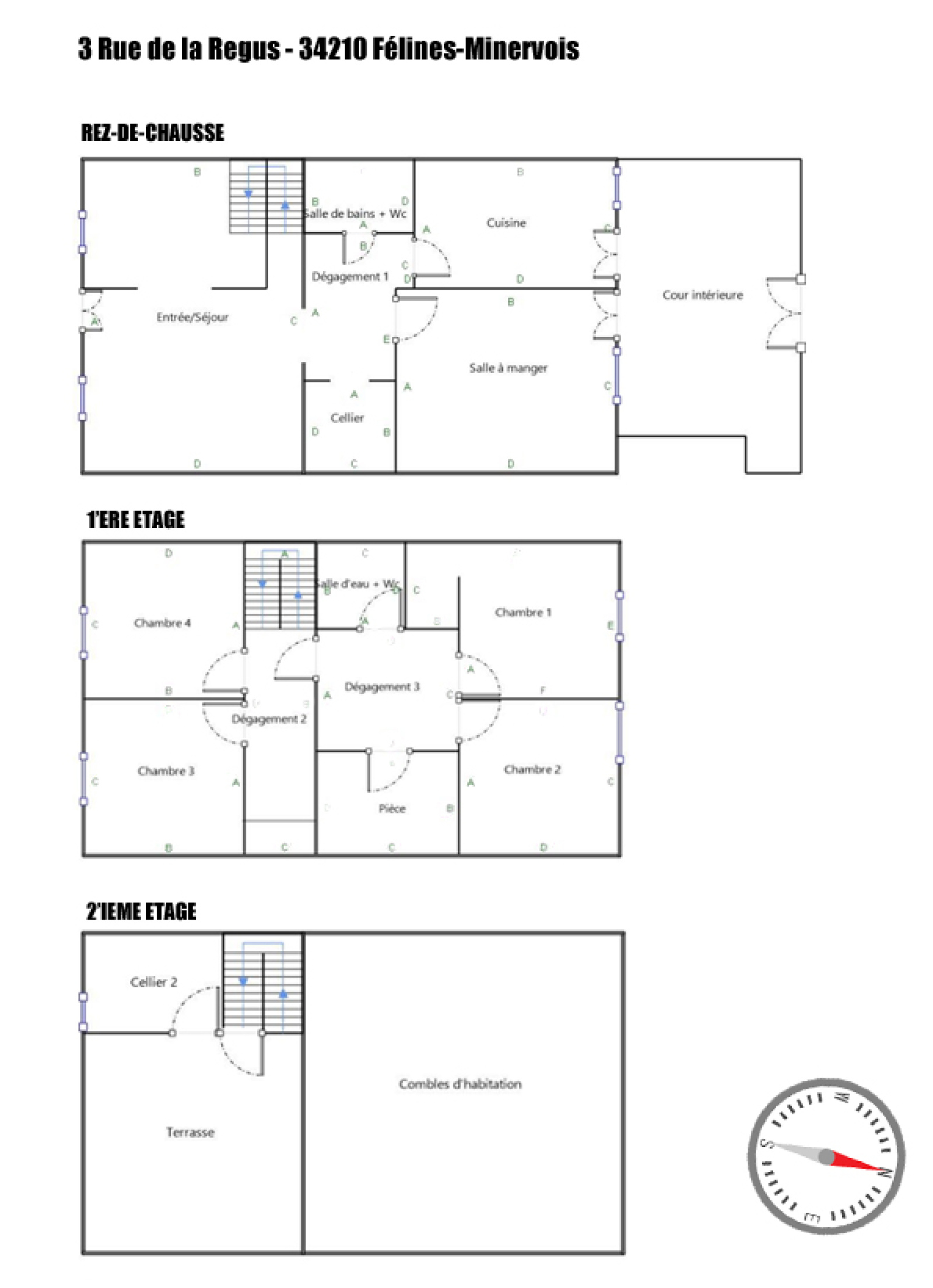
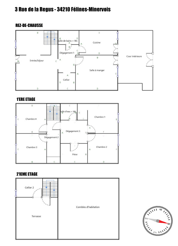
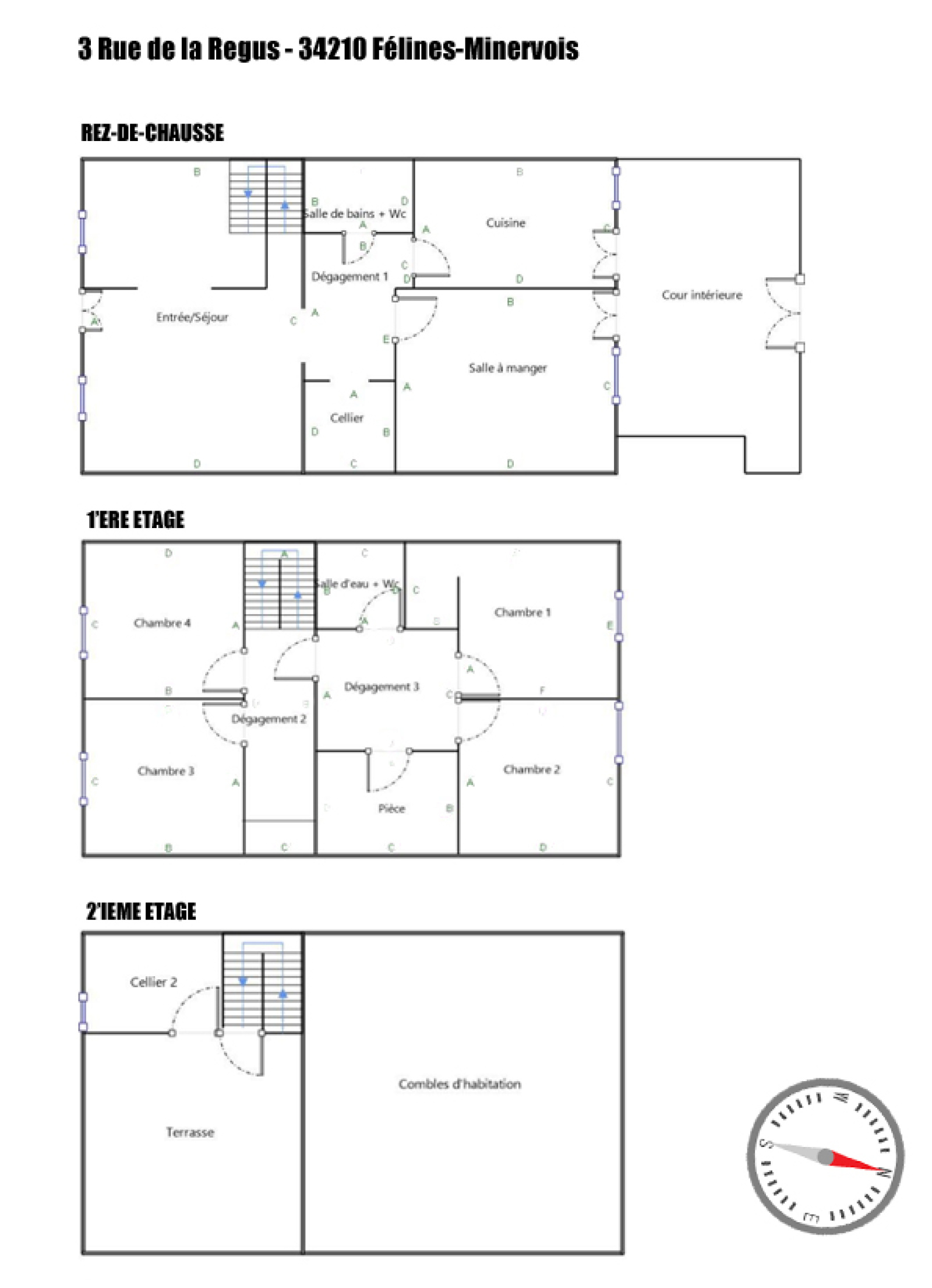
Grande maison de village avec joli jardin clos et grande terrasse tropezienne au coeur de Félines-Minervois.

193 m² habitable (et 240 m² au total)

Le rez-de-chaussée contient
2 salons
1 salle de bain/wc
Buanderie
Grande cuisine équipée avec accès direkt au jardin
Salle à mangér avec accès direct au jardin

Le 1ere étage comporte:
5 chambres
Salle de l'eau
Grand degagement.

Jardin de 145 m²
Terrasse tropezienne d'une surface de 50m²

Performance énérgétique et climatique
Consommation d'energie primaire - 258 kWh/m²/an (E)
Emissions de gaz - 8 kg CO2/m²/an (B)
112 kWh/m²/an en finale

Estimation des coûts annuels d’énergie du logement entre 2.990 et 4.060 euros par an.

Vous pourrez trouver les renseignements sur les risques auxquels ce bien est exposé sur le site www.georisques.gouv.fr

PRIX: € 192.600 (frais d'agence inclus)

Pour toute demande de renseignements supplémentaires ou pour organiser une visite de cette maison, n'hésitez pas à contacter Peter KRISTENSEN EI au 07 68 72 01 51 - peter.kristensen@mapepiteimmo.fr. Numéro RSAC : 893638650

Annonce proposée par un agent commercial

Général
Code postal 34210
surface terrain 145 m²
Surface loi Carrez (m²) 193 m²
Nombre de chambre(s) 5
Nombre de pièces 7
Nombre de niveaux 2
Vue Dégagée panoramic
Détails
Nb de salle de bains 1
Nb de salle d'eau 1
Cuisine Séparée
Type de cuisine SEMI-EQUIPEE
Mode de chauffage Bois, Electrique
Type de chauffage Poêle, Radiateur
Format de chauffage Individuel, Individuel
Terrasse OUI
Murs mitoyens 2
Exposition Nord
Année de construction 1845
Financier
Prix de vente 192 600 €
Les honoraires d'agence seront intégralement à la charge du vendeur  
Taxe foncière annuelle 656 €
Quartier
  • Commerces et santé
  • Loisirs
  • Ecoles
  • Transports
  • Pratique
Energie
DPE GES
Contacter pour ce bien
L'agent
KRISTENSEN (EI) Peter
Téléphone 07 68 72 01 51

* Champ obligatoire

Les informations recueillies sur ce formulaire sont enregistrées dans un fichier informatisé par La Boite Immo agissant comme Sous-traitant du traitement pour la gestion de la clientèle/prospects de l'Agence / du Réseau qui reste Responsable du Traitement de vos Données personnelles. La base légale du traitement repose sur l'intérêt légitime de l'Agence / du Réseau. Elles sont conservées jusqu'à demande de suppression et sont destinées à l'Agence / au Réseau. Conformément à la loi « informatique et libertés », vous disposez des droits d’accès, de rectification, d’effacement, d’opposition, de limitation et de portabilité de vos données. Vous pouvez retirer votre consentement à tout moment en contactant directement l’Agence / Le Réseau. Consultez le site https://cnil.fr/fr pour plus d’informations sur vos droits. Si vous estimez, après avoir contacté l'Agence / le Réseau, que vos droits « Informatique et Libertés » ne sont pas respectés, vous pouvez adresser une réclamation à la CNIL. Nous vous informons de l’existence de la liste d'opposition au démarchage téléphonique « Bloctel », sur laquelle vous pouvez vous inscrire ici : https://www.bloctel.gouv.fr Dans le cadre de la protection des Données personnelles, nous vous invitons à ne pas inscrire de Données sensibles dans le champ de saisie libre.
Ce site est protégé par reCAPTCHA, les Politiques de Confidentialité et les Conditions d'Utilisation de Google s'appliquent.

Découvrir nos outils